.jpg)
3103 N Oakland Avenue, Decatur, IL
$159,900
Pending
3 Beds
2½ Baths
1,861 SqFt
0.46 Acres
2 Car Garage
About 3103 N Oakland Avenue
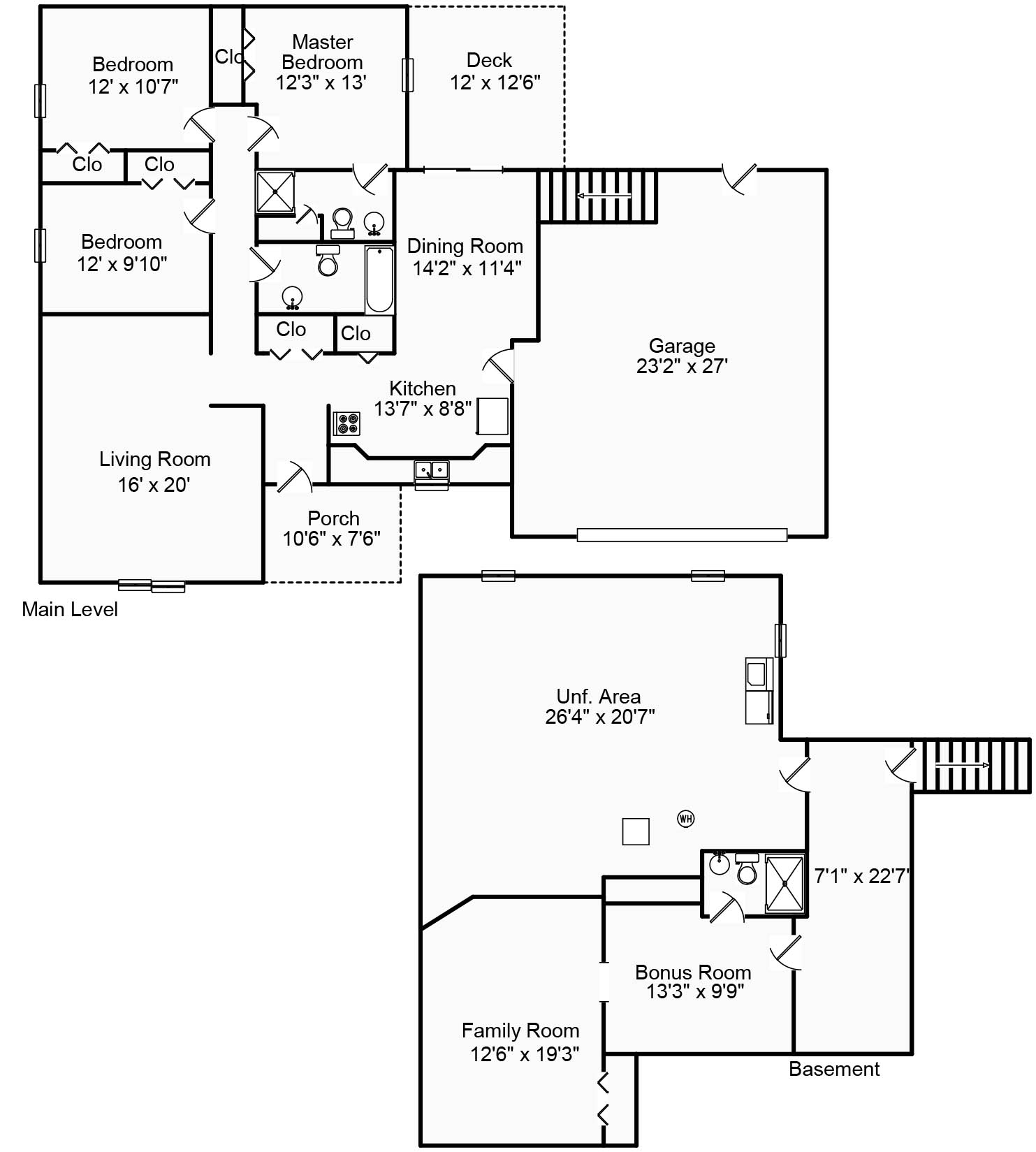
Great north location close to shopping, churches, schools and interstate 72. This brick and vinyl sided ranch has a full basement and a 2 car attached garage. The main floor offers a large eat-in kitchen, private living room and 3 bedrooms. Entering the basement from the garage offers a private setting for guests if needed. The basement has a family room, bathroom and a laundry area. Detached garage is perfect for a workshop. Plus, there is a large shed for storing lawn mowers and garden equipment. Nice garden area next to the shed. Minor cosmetic updating needed. Sellng home in an As Is condition due to being in an Estate. Great neighborhood with 1/2 acre lots.
Facts & Features
MLS® # | 6251928 |
---|---|
Price | $159,900 |
Cost Per Square Foot | $86 |
Bedrooms | 3 |
Bathrooms | 3.00 |
Full Baths | 2 |
Half Baths | 1 |
Total Finished Square Feet | 1,861 |
Total Finished Above Grade | 1,368 |
Main | 1,368 |
Basement Total | 1,396 |
Basement Finished | 493 |
Basement Unfinished | 903 |
Acres | 0.46 |
Year Built | 1976 |
Type | Single Family |
Sub-Type | Single Family Residence |
Style | Ranch |
Status | Pending |
Taxes | $3,284 |
Tax Year | 2024 |
Community Information
Address | 3103 N Oakland Avenue |
---|---|
Subdivision | Greendell Add |
City | Decatur |
County | Macon |
State | IL |
Zip Code | 62526 |
Amenities
Parking | Detached, Garage, Attached |
---|---|
# of Garage Spaces | 2 |
Is Waterfront | No |
Has Pool | No |
Interior
Appliances | Gas Water Heater, Cooktop, Dishwasher, Range, Refrigerator |
---|---|
Heating | Forced Air, Gas |
Cooling | Central Air |
Has Basement | Yes |
Basement | Finished, Full, Unfinished |
Fireplace | Yes |
# of Fireplaces | 1 |
# of Stories | 1 |
Stories | One |
Exterior
Lot Dimensions | 103 x 196 |
---|---|
Roof | Asphalt |
Construction | Brick, Vinyl Siding |
Foundation | Basement |
School Information
District | Decatur Dist 61 |
---|---|
Elementary | Parsons |
Middle | Stephen Decatur |
High | Macarthur |
Additional Information
Date Listed | May 13th, 2025 |
---|---|
Days on Market | 144 |
Zoning | RES |
Listing Details
Agent | Joseph Doolin |
---|---|
Office | Brinkoetter REALTORS® |