215 S Glencoe Avenue, Decatur, IL
$175,000
Pending
4 Beds
2½ Baths
2,398 SqFt
0.17 Acres
3 Car Garage
About 215 S Glencoe Avenue
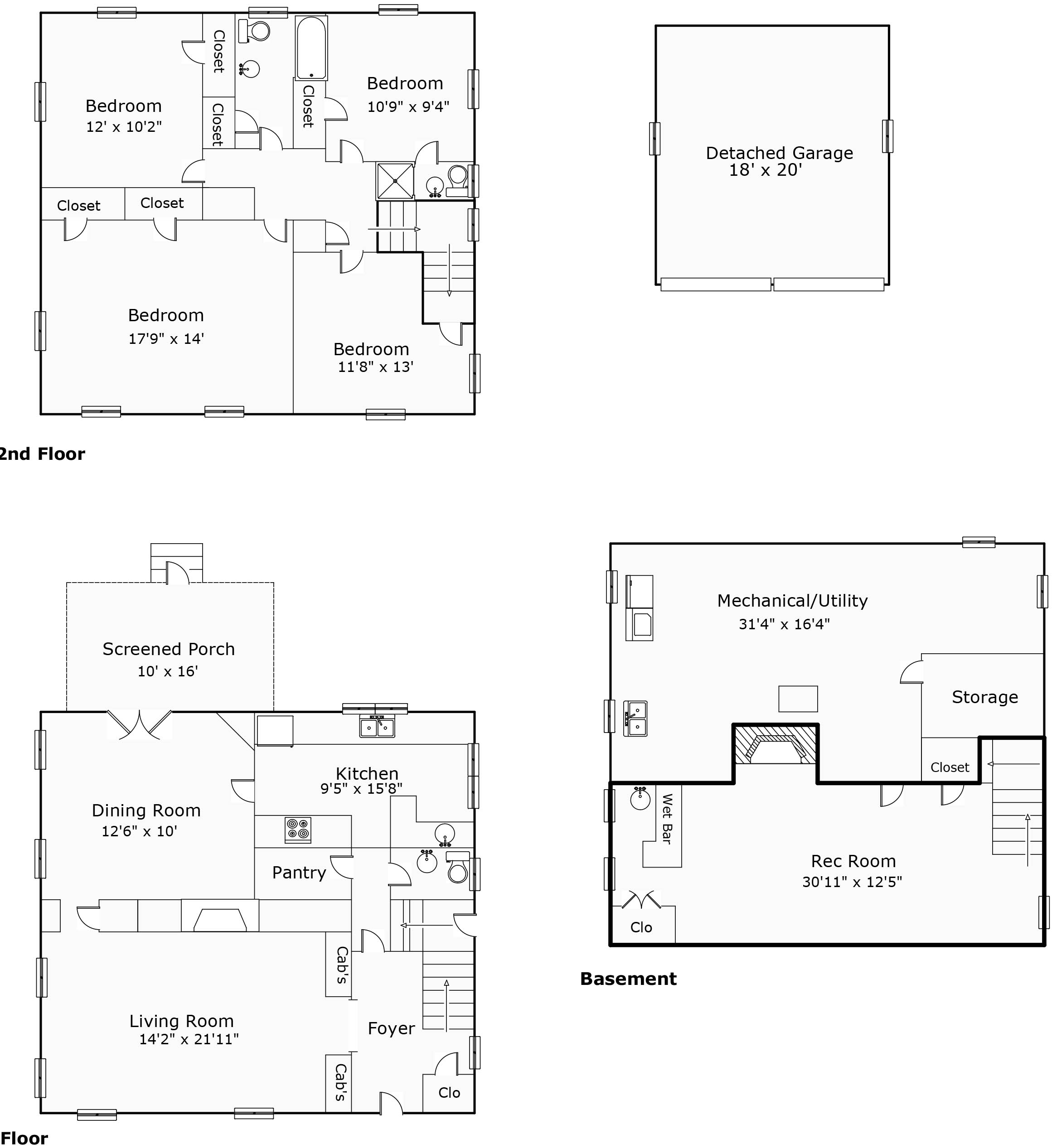
Seller is offering a 2-1 mortgage rate buydown with an acceptable offer, making this even more affordable! Contact your lender for details on how this temporary buydown can reduce your monthly payments. Charming and full of character, this 2-story brick home is nestled in Decatur’s sought-after Historic West End! Featuring 4 bedrooms and 2.5 bathrooms, you'll love the gorgeous hardwood floors in the living room, dining room, and primary bedroom. The spacious living room also includes a gas fireplace and beautiful built-ins that add timeless charm. The kitchen has been tastefully updated with Corian countertops, stainless steel appliances, tile backsplash, and a large pantry. One of the bathrooms is conveniently located off a bedroom—perfect for guests or multi-generational living. All bathrooms feature ceramic tile flooring. Enjoy your morning coffee on the screened-in back porch, and take advantage of the rare oversized 2.5-car garage. Other major updates include a new roof (2024), HVAC (2010), gutter guards (2020), and replacement windows. The basement offers even more space with a second fireplace, bar, and ample storage. Pre-inspected and comes with a home warranty for added peace of mind—this West End gem offers modern comfort, classic charm, and great curb appeal. Don’t miss it!
Facts & Features
| MLS® # | 6252700 |
|---|---|
| Price | $175,000 |
| Cost Per Square Foot | $73 |
| Bedrooms | 4 |
| Bathrooms | 3.00 |
| Full Baths | 2 |
| Half Baths | 1 |
| Total Finished Square Feet | 2,398 |
| Total Finished Above Grade | 2,026 |
| Main | 1,039 |
| Upper 1 | 987 |
| Basement Total | 1,039 |
| Basement Finished | 372 |
| Basement Unfinished | 667 |
| Acres | 0.17 |
| Year Built | 1937 |
| Type | Single Family |
| Sub-Type | Single Family Residence |
| Style | Traditional |
| Status | Pending |
| Taxes | $4,686 |
| Tax Year | 2024 |
Community Information
| Address | 215 S Glencoe Avenue |
|---|---|
| Subdivision | Shaws 1st Add |
| City | Decatur |
| County | Macon |
| State | IL |
| Zip Code | 62522 |
Amenities
| Parking | Detached, Garage |
|---|---|
| # of Garage Spaces | 3 |
| Is Waterfront | No |
| Has Pool | No |
Interior
| Appliances | Dishwasher, Disposal, Gas Water Heater, Microwave, Range, Refrigerator |
|---|---|
| Heating | Forced Air, Gas |
| Cooling | Central Air |
| Has Basement | Yes |
| Basement | Finished, Full, Unfinished |
| Fireplace | Yes |
| # of Fireplaces | 2 |
| Fireplaces | Gas, Wood Burning |
| # of Stories | 2 |
| Stories | Two |
Exterior
| Exterior Features | Fence |
|---|---|
| Lot Dimensions | 60x120 |
| Windows | Replacement Windows |
| Roof | Asphalt, Shingle |
| Construction | Brick |
| Foundation | Basement |
School Information
| District | Decatur Dist 61 |
|---|
Additional Information
| Date Listed | July 1st, 2025 |
|---|---|
| Days on Market | 115 |
| Zoning | RES |
Listing Details
| Agent | Tony Piraino |
|---|---|
| Office | Brinkoetter REALTORS® |