3454 N Christine Drive, Decatur, IL
$115,000
Active - Under Contract
3 Beds
1 Bath
1,206 SqFt
0.45 Acres
2 Car Garage
About 3454 N Christine Drive
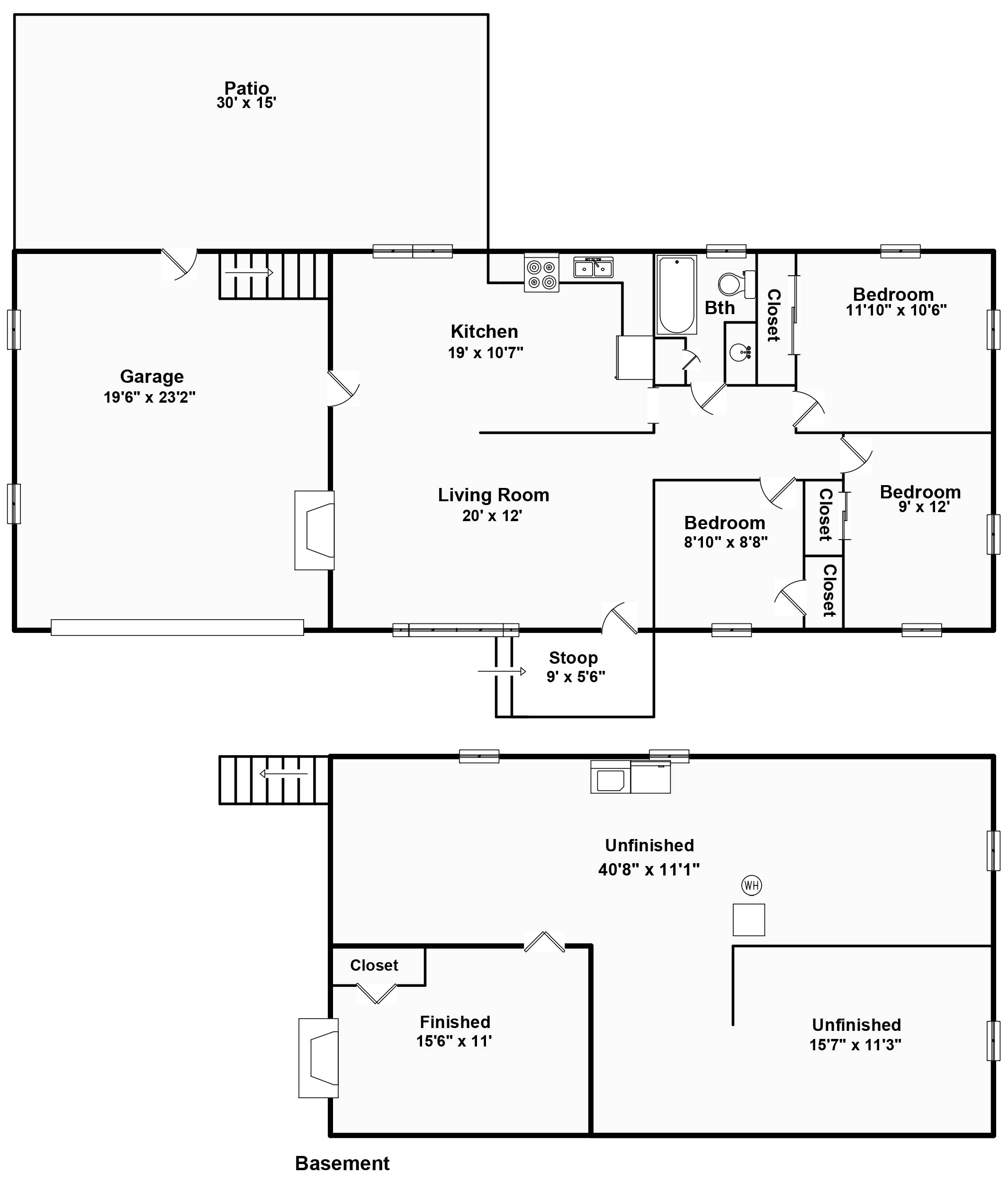
Move-in ready ranch with basement and attached 2-car garage on the north side of town, near shopping and Hwy 72. Recent updates include a brand new roof in 2024, new windows including a large bay window in living room, and new flooring throughout. The spacious back yard is mostly fenced, and has a patio for relaxing, as well as a shed for outdoor storage. Basement is unfinished, but has a cute partially finished area with a fireplace. All kitchen appliances and washer/dryer included. Schedule your showing today!
Facts & Features
| MLS® # | 6254687 |
|---|---|
| Price | $115,000 |
| Cost Per Square Foot | $95 |
| Bedrooms | 3 |
| Bathrooms | 1.00 |
| Full Baths | 1 |
| Total Finished Square Feet | 1,206 |
| Total Finished Above Grade | 1,008 |
| Main | 1,008 |
| Basement Total | 1,008 |
| Basement Finished | 198 |
| Basement Unfinished | 810 |
| Acres | 0.45 |
| Year Built | 1955 |
| Type | Single Family |
| Sub-Type | Single Family Residence |
| Style | Ranch |
| Status | Active - Under Contract |
| Taxes | $3,082 |
| Tax Year | 2024 |
Community Information
| Address | 3454 N Christine Drive |
|---|---|
| Subdivision | Brettwood Heights |
| City | Decatur |
| County | Macon |
| State | IL |
| Zip Code | 62526 |
Amenities
| Parking | Attached, Garage |
|---|---|
| # of Garage Spaces | 2 |
| Is Waterfront | No |
| Has Pool | No |
Interior
| Appliances | Cooktop, Dryer, Gas Water Heater, Oven, Refrigerator, Washer |
|---|---|
| Heating | Forced Air |
| Cooling | Central Air |
| Has Basement | Yes |
| Basement | Unfinished, Full, Sump Pump |
| Fireplace | Yes |
| # of Fireplaces | 2 |
| Fireplaces | Wood Burning, Family/Living/Great Room |
| # of Stories | 1 |
| Stories | One |
Exterior
| Exterior Features | Shed, Fence |
|---|---|
| Windows | Replacement Windows |
| Roof | Asphalt |
| Construction | Vinyl Siding |
| Foundation | Basement |
School Information
| District | Decatur Dist 61 |
|---|
Additional Information
| Date Listed | August 20th, 2025 |
|---|---|
| Days on Market | 65 |
| Zoning | RES |
Listing Details
| Agent | Joseph Doolin |
|---|---|
| Office | Brinkoetter REALTORS® |