.jpg)
4080 Bayview Drive, Decatur, IL
$139,000
Active
3 Beds
1 Bath
1,316 SqFt
0.47 Acres
1 Car Garage
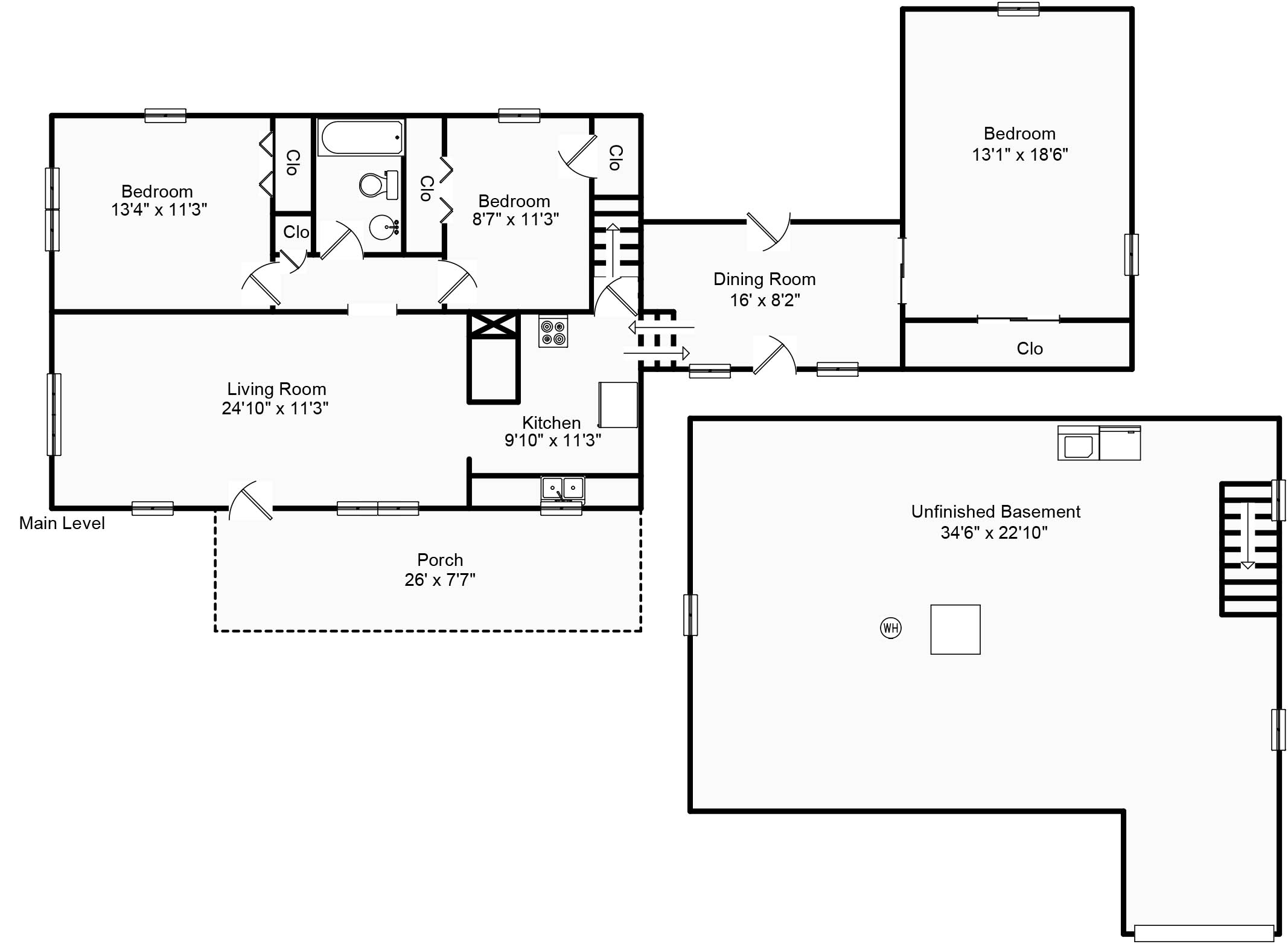
About 4080 Bayview Drive
Remodeled 3-bedroom ranch on a partial basement with split-bedroom layout, open concept design, and superb curb appeal. A large primary suite features a walk-in closet, and a bonus room off the kitchen offers flexibility as a dining room, office, or den. Bright new windows, fresh paint, and new flooring create a modern feel throughout. Enjoy the spacious privacy-fenced backyard and quaint front porch. Major updates include 2021 full bath remodel, kitchen update with appliances, backsplash, countertop, new furnace and AC, trim, doors, drywall, recessed lighting, flooring, paint, soffits, gutters, vinyl porch railing, and new master walk-in closet; 2020 energy-efficient Argon windows; 2017 gas water heater; and 2014 roof. Move-in ready with all the big-ticket updates complete!
Facts & Features
MLS® # | 6255319 |
---|---|
Price | $139,000 |
Cost Per Square Foot | $106 |
Bedrooms | 3 |
Bathrooms | 1.00 |
Full Baths | 1 |
Total Finished Square Feet | 1,316 |
Total Finished Above Grade | 1,316 |
Main | 1,316 |
Basement Total | 935 |
Acres | 0.47 |
Year Built | 1928 |
Type | Single Family |
Sub-Type | Single Family Residence |
Style | Ranch |
Status | Active |
Taxes | $0 |
Tax Year | 2024 |
Community Information
Address | 4080 Bayview Drive |
---|---|
Subdivision | Beverly Heights |
City | Decatur |
County | Macon |
State | IL |
Zip Code | 62521 |
Amenities
Parking | Garage, Attached |
---|---|
# of Garage Spaces | 1 |
Is Waterfront | No |
Has Pool | No |
Interior
Appliances | Gas Water Heater, Oven, Range, Refrigerator |
---|---|
Heating | Forced Air |
Cooling | Central Air |
Has Basement | Yes |
Basement | Unfinished, Partial |
Fireplace | No |
# of Stories | 1 |
Stories | One |
Exterior
Roof | Asphalt, Shingle |
---|---|
Construction | Vinyl Siding |
Foundation | Basement |
School Information
District | Decatur Dist 61 |
---|
Additional Information
Date Listed | October 1st, 2025 |
---|---|
Days on Market | 14 |
Zoning | MUN |
Listing Details
Agent | Tony Piraino |
---|---|
Office | Brinkoetter REALTORS® |