860 W Wildwood Drive, Mt Zion, IL
$675,000
Active
4 Beds
4 Baths
6,207 SqFt
13.24 Acres
9 Car Garage
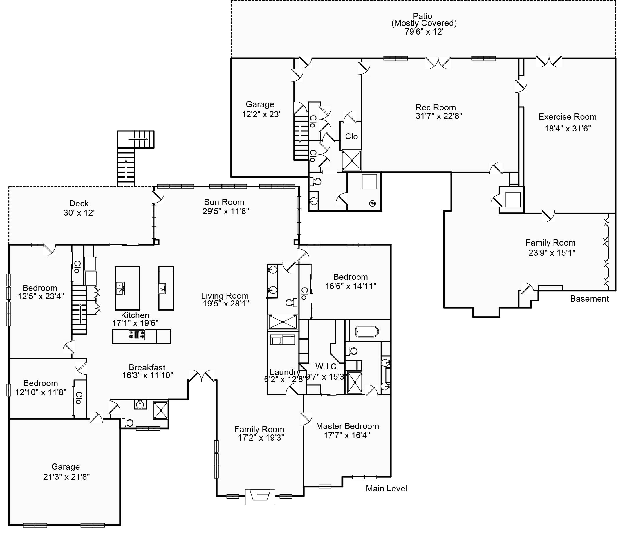
About 860 W Wildwood Drive
Looking for land, privacy, and Mt. Zion Schools? This stunning brick ranch sits at the end of a road and offers everything you’ve been searching for. Enjoy open-concept living with a large chef’s kitchen featuring a massive island, quartz and granite countertops, and hardwood floors throughout the main level. The walk-out lower level is just as impressive with a gym and a family room with heated ceramic tile floors, a cozy wood-burning stove, a hidden built-in gun safe - plenty of space to relax or entertain. The home features a zoned HVAC system (approx. 6 years old), a new roof in 2025, and a water heater around 2014. The spacious primary suite includes dual sinks and a Jacuzzi tub. The 4th bedroom is currently used as a bright, beautiful home office with direct deck access. Step outside to a large Trek deck overlooking peaceful, private acreage — perfect for enjoying nature, running the wooded trails, or visiting the creek. The property also includes a Morton building (68x42) with a concrete floor, insulated and heated, electric roll-up door, plus a chicken coop. New front landscaping adds the finishing touch to this incredible Mt. Zion retreat — come live the dream!
Facts & Features
| MLS® # | 6255390 |
|---|---|
| Price | $675,000 |
| Cost Per Square Foot | $109 |
| Bedrooms | 4 |
| Bathrooms | 4.00 |
| Full Baths | 4 |
| Total Finished Square Feet | 6,207 |
| Total Finished Above Grade | 3,680 |
| Main | 3,680 |
| Basement Total | 2,611 |
| Basement Finished | 2,527 |
| Basement Unfinished | 84 |
| Acres | 13.24 |
| Year Built | 1978 |
| Type | Single Family |
| Sub-Type | Single Family Residence |
| Style | Ranch |
| Status | Active |
| Taxes | $11,384 |
| Tax Year | 2024 |
Community Information
| Address | 860 W Wildwood Drive |
|---|---|
| City | Mt Zion |
| County | Macon |
| State | IL |
| Zip Code | 62549 |
Amenities
| Parking | Attached, Detached, Four or more Spaces, Garage |
|---|---|
| # of Garage Spaces | 9 |
| Is Waterfront | No |
| Has Pool | No |
Interior
| Appliances | Built-In, Dishwasher, Disposal, Dryer, Gas Water Heater, Microwave, Oven, Range, Range Hood, Refrigerator, Trash Compactor, Washer |
|---|---|
| Heating | Forced Air, Gas |
| Cooling | Central Air |
| Has Basement | Yes |
| Basement | Finished, Partial, Walk-Out Access |
| Fireplace | Yes |
| # of Fireplaces | 2 |
| Fireplaces | Wood Burning, Wood Burning Stove |
| # of Stories | 1 |
| Stories | One |
Exterior
| Exterior Features | Deck, Fence, Shed, Workshop |
|---|---|
| Lot Dimensions | irregular |
| Roof | Asphalt, Shingle |
| Construction | Brick, Vinyl Siding |
| Foundation | Basement |
School Information
| District | Mt Zion Dist 3 |
|---|
Additional Information
| Date Listed | October 8th, 2025 |
|---|---|
| Days on Market | 37 |
| Zoning | RES |
Listing Details
| Agent | Tony Piraino |
|---|---|
| Office | Brinkoetter REALTORS® |