.jpg)
3247 Nevada Road, Decatur, IL
$235,000
Active - Under Contract
3 Beds
2 Baths
1,689 SqFt
5.00 Acres
1 Car Garage
About 3247 Nevada Road
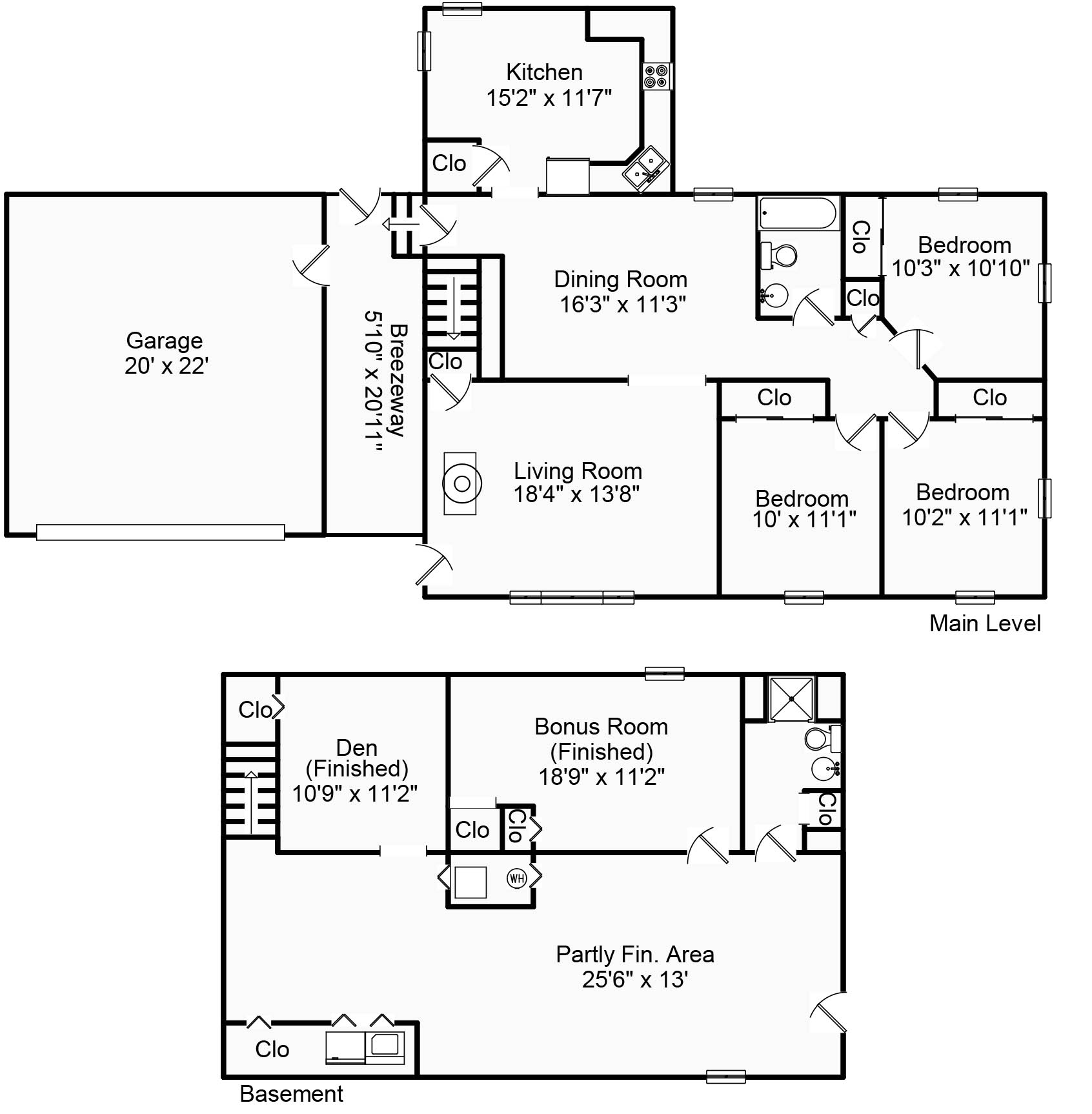
GOT HORSES?? 4 or 5 bedroom/2 full bath ranch with walk-out basement on 5 acres. Roof only 2 years old. Replacement windows. 7 stall barn with tack room and hayloft. Plenty of pasture area. Shed with metal roof.
Facts & Features
MLS® # | 6255481 |
---|---|
Price | $235,000 |
Cost Per Square Foot | $139 |
Bedrooms | 3 |
Bathrooms | 2.00 |
Full Baths | 2 |
Total Finished Square Feet | 1,689 |
Total Finished Above Grade | 1,232 |
Main | 1,232 |
Basement Total | 1,041 |
Basement Finished | 457 |
Basement Unfinished | 584 |
Acres | 5.00 |
Year Built | 1965 |
Type | Single Family |
Sub-Type | Single Family Residence |
Style | Ranch |
Status | Active - Under Contract |
Taxes | $3,237 |
Tax Year | 2025 |
Community Information
Address | 3247 Nevada Road |
---|---|
City | Decatur |
County | Macon |
State | IL |
Zip Code | 62522 |
Amenities
Parking | Attached, Garage |
---|---|
# of Garage Spaces | 1 |
Is Waterfront | No |
Has Pool | No |
Interior
Appliances | Microwave, Oven, Range, Refrigerator, Gas Water Heater, Water Purifier, Water Softener |
---|---|
Heating | Forced Air, Propane, Gas |
Cooling | Central Air |
Has Basement | Yes |
Basement | Finished, Full, Unfinished |
Fireplace | Yes |
# of Fireplaces | 1 |
# of Stories | 1 |
Stories | One |
Exterior
Exterior Features | Fence |
---|---|
Lot Dimensions | 1104.9x192.9 |
Windows | Replacement Windows |
Roof | Composition, Shingle |
Construction | Vinyl Siding |
Foundation | Basement |
School Information
District | Meridian Dist 15 |
---|---|
Elementary | Meridian |
Middle | Meridian |
High | Meridian |
Additional Information
Date Listed | October 17th, 2025 |
---|---|
Days on Market | 6 |
Zoning | RES |
Listing Details
Agent | Sherry Plain |
---|---|
Office | Brinkoetter REALTORS® |