7450 W William Street, Decatur, IL
$60,000
Pending
2 Beds
2 Baths
1,008 SqFt
0.96 Acres
2 Car Garage
About 7450 W William Street
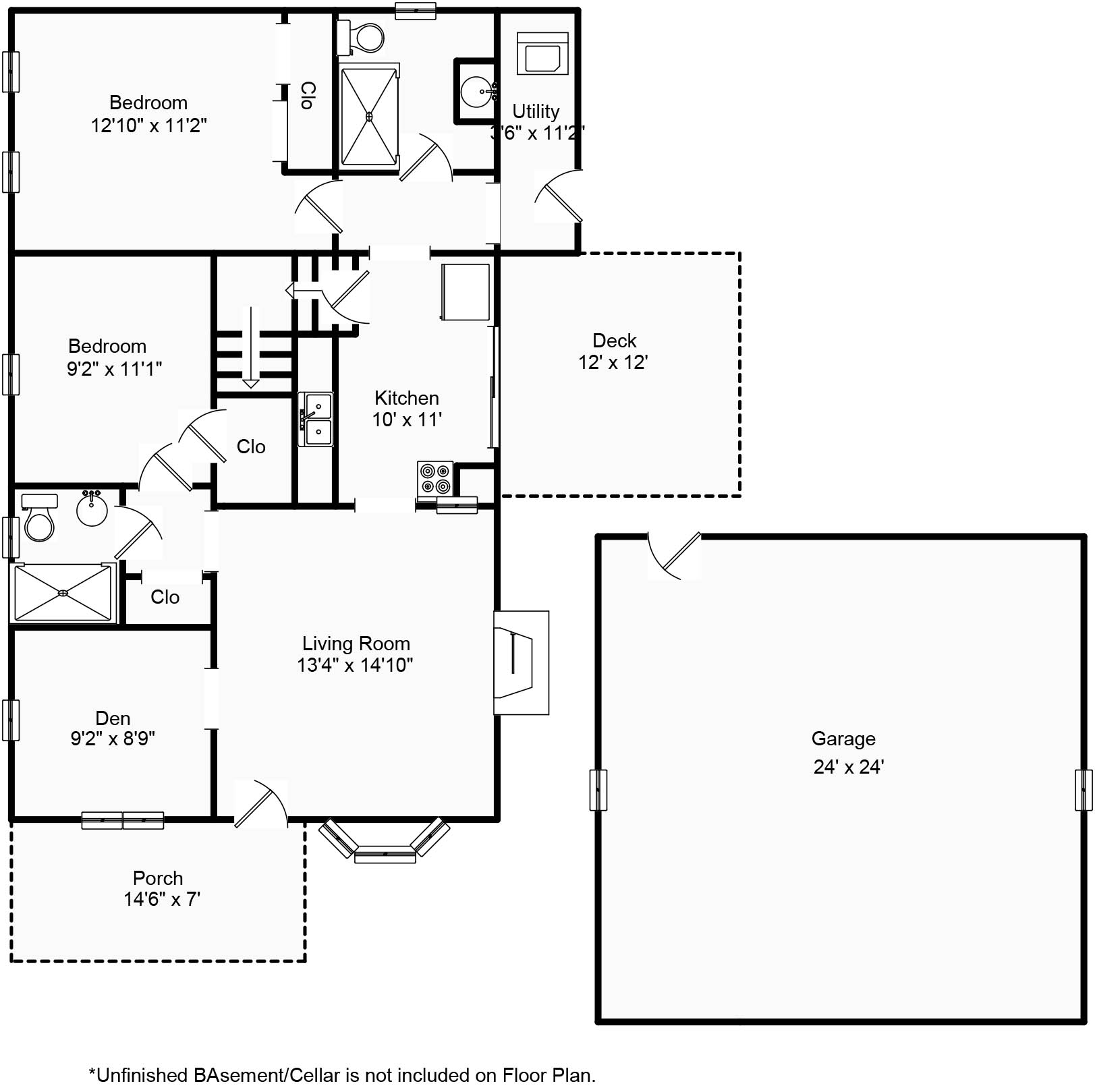
Great price and potential investment opportunity with this quaint ranch on almost an acre wooded lot in Sangamon Valley schools! The house has been updated with a metal roof on the house and garage, vinyl siding, replacement windows, new and refinished flooring, new trim and paint, HVAC (2021), and 2 remodeled bathrooms. The kitchen is open to the living room with a wood burning fireplace. There are 2 bedrooms and a 3rd room that could be used as a bedroom or den. Laundry room is on the main level. The property includes two storage sheds, a 2-car detached garage, PLUS some pear and apple trees! For this price, the property is being sold AS IS. (Sqft not deemed accurate until professionally measured)
Facts & Features
| MLS® # | 6255581 |
|---|---|
| Price | $60,000 |
| Cost Per Square Foot | $60 |
| Bedrooms | 2 |
| Bathrooms | 2.00 |
| Full Baths | 2 |
| Total Finished Square Feet | 1,008 |
| Total Finished Above Grade | 1,008 |
| Main | 1,008 |
| Basement Total | 960 |
| Acres | 0.96 |
| Year Built | 1930 |
| Type | Single Family |
| Sub-Type | Single Family Residence |
| Style | Ranch |
| Status | Pending |
| Taxes | $1,369 |
| Tax Year | 2024 |
Community Information
| Address | 7450 W William Street |
|---|---|
| City | Decatur |
| County | Macon |
| State | IL |
| Zip Code | 62522 |
Amenities
| Parking | Detached, Garage |
|---|---|
| # of Garage Spaces | 2 |
| Is Waterfront | No |
| Has Pool | No |
Interior
| Appliances | Dryer, Gas Water Heater, Refrigerator, Washer, Oven |
|---|---|
| Heating | Forced Air |
| Cooling | None |
| Has Basement | Yes |
| Basement | Unfinished, Full |
| Fireplace | Yes |
| # of Fireplaces | 1 |
| Fireplaces | Family/Living/Great Room, Wood Burning |
| # of Stories | 1 |
| Stories | One |
Exterior
| Exterior Features | Shed |
|---|---|
| Roof | Metal |
| Construction | Vinyl Siding |
| Foundation | Basement |
School Information
| District | Sangamon Valley Dist 9 |
|---|
Additional Information
| Date Listed | October 10th, 2025 |
|---|---|
| Days on Market | 14 |
| Zoning | RES |
Listing Details
| Agent | Joseph Doolin |
|---|---|
| Office | Brinkoetter REALTORS® |